Wybierz mieszkanie
logologo
sprzedaz@cukrownia.gniezno.pl
+48 883 578 111
Sprzedane

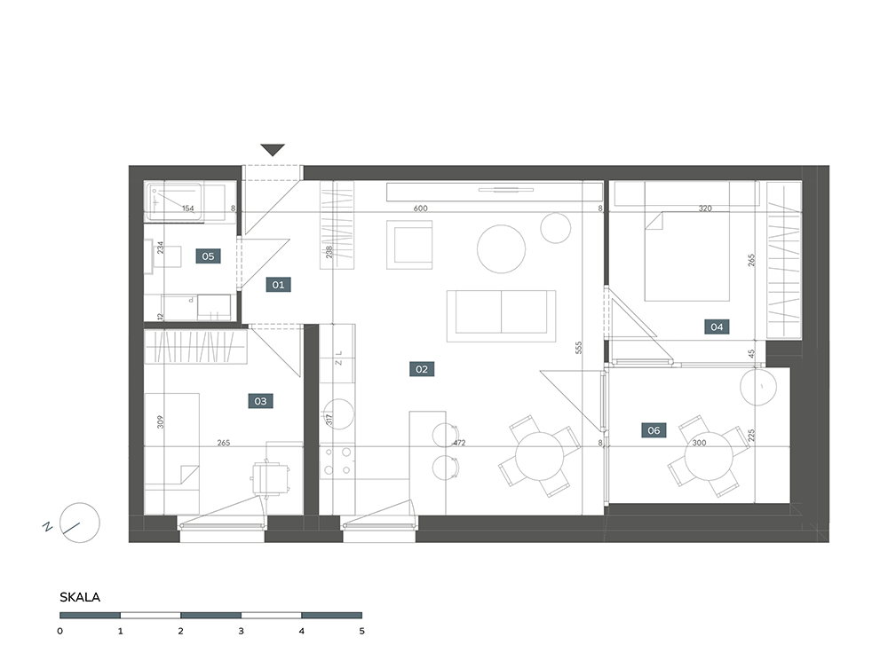
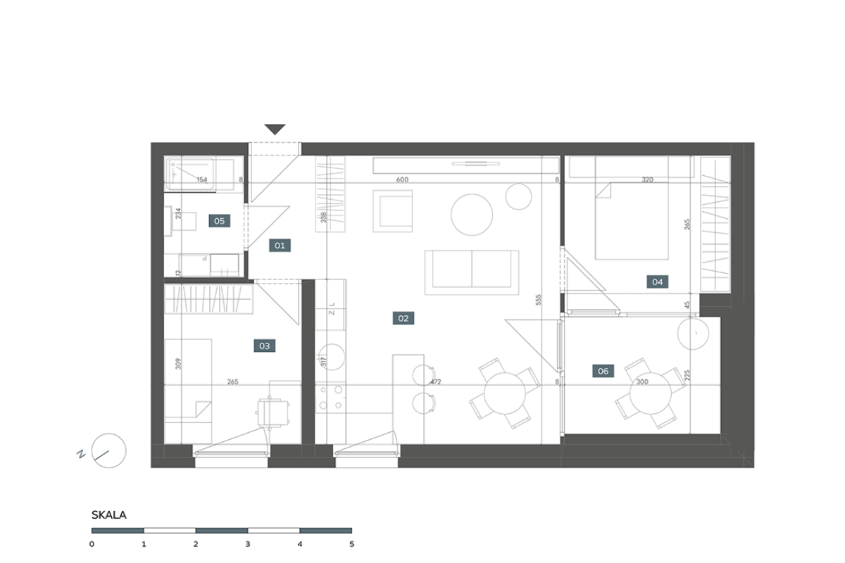
Apartament 3B.9

Segment
3B
Piętro
2
Powierzchnia [m2]
48.44
Pokoje
3

Dodatkowo
+ Loggia
+ Aneks kuchenny

Pobierz kartę PDF
Pobierz inne świadczenia PDF
Pobierz prospekt informacyjny PDF
Hala garażowa

35 000 zł

Komórka lokatorska

4 900 zł/ m2

Biuro sprzedaży
ul. Elizy Orzeszkowej 29e/1
62-200 Gniezno
Inwestycja
Mieszkania
Lokalizacja
Deweloper
Galeria
Kontakt
footer-img
© Copyright Aedilis 2022
Polityka Prywatności
strony internetowe: ecreo.eu
  • Strona główna
  • Inwestycja
  • Wybierz mieszkanie
  • Lokalizacja
  • Galeria
  • O deweloperze
  • Kontakt
Biuro sprzedaży
ul. Elizy Orzeszkowej 29e/1
62-200 Gniezno